Wohnung Q: Neue Penthousewohnung mit zwei großen Terrassen und spektakulärem Panoramablick über Bozen
Bozen
1.180.000 €
Preis
119.23 m2
Handelsfläche
3
Zimmer
Grundinformationen
  • Energieeffizienzklasse
    A
  • Zustand der Immobilie
    Neu
  • Anzahl der Zimmer
    3
  • Stockwerk
    3. OG
  • Aufzug
    Ja
Zusatzinformationen
  • Bäder
    1
  • Keller
    Ja
  • Balkon
    Ja
  • Heizung
    Zentral
  • Übergabezeitpunkt
    Ende 2026
  • Baujahr
    2025

Inmitten der Weinberge von St. Magdalena, einer der begehrtesten Wohnlagen Bozens, entsteht ein modernes Neubauprojekt mit 15 hochwertigen Eigentumswohnungen. Die sonnige Hanglage oberhalb der Stadt bietet einen beeindruckenden Panoramablick über Bozen und verbindet naturnahes Wohnen mit der Nähe zum Stadtzentrum.

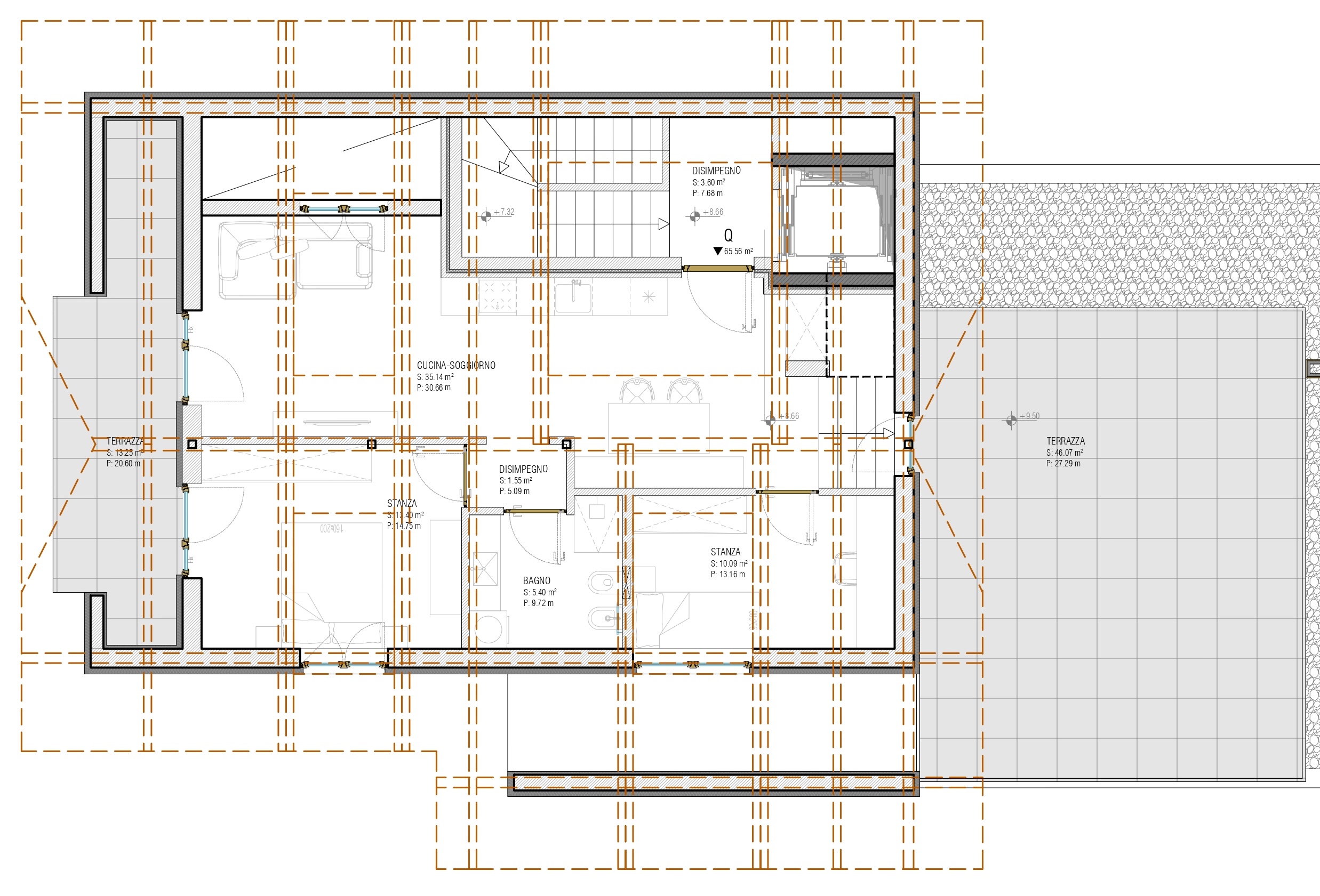
Wohnung Q: Zum Verkauf steht eine neue Penthousewohnung mit zwei großen Terrasse und spektakulärem Panoramablick über Bozen

Interne Einteilung: Eingang, Wohnraum mit Küche, 2 Schlafzimmer, Badezimmer und 2 Terrassen. 

Der Keller ist im Verkaufspreis inkludiert. Stellplätze bzw. Garagen können zusätzlich erworben werden.

Die stilvolle Architektur fügt sich harmonisch in die umliegende Kulturlandschaft ein. Großzügige Grundrisse, helle Wohnräume sowie private Gärten, Balkone oder Terrassen schaffen ein angenehmes Wohngefühl und hohen Wohnkomfort.

KlimaHaus A:

• 15 individuell gestaltete Eigentumswohnungen

• Wohnungen mit 1 bis 3 Schlafzimmern

• Private Gärten, Balkone oder Terrassen

• Hochwertige Ausstattung und nachhaltige Bauweise

• Tiefgarage und private Kellerräume

• Ruhige Panoramalage oberhalb von Bozen

• Voraussichtliche Fertigstellung: Ende 2026

Der Reisegger Hof vereint Ruhe, Natur und moderne Architektur zu einem besonderen Wohnprojekt – ideal für alle, die exklusives Wohnen mit Weitblick schätzen.