W11: Neue, sehr hochwertige Penthousewohnung mit großer Terrasse
Brixen, Eden
1.240.000 €
Preis
172.23 m2
Handelsfläche
4
Zimmer
Grundinformationen
  • Energieeffizienzklasse
    A+
  • Zustand der Immobilie
    Neu
  • Anzahl der Zimmer
    4
  • Stockwerk
    4. OG
  • Aufzug
    Ja
Zusatzinformationen
  • Bäder
    2
  • Keller
    Ja
  • Terrasse
    Ja
  • Heizung
    Zentral
  • Übergabezeitpunkt
    Dezember 2026
  • Baujahr
    2025

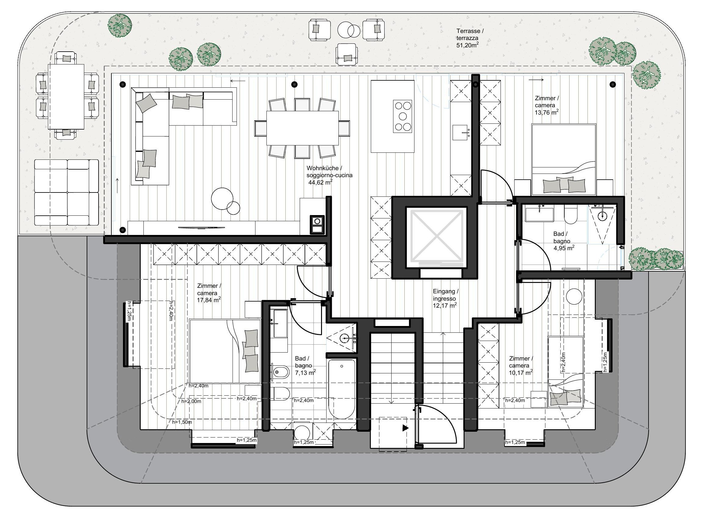
Exklusive Penthousewohnung mit großem, offenen Wohn-, Koch- und Essbereich, drei Schlafzimmern und zwei geräumigen Bädern en Suite und wunderbarer Terrasse.

Durch die raumhohe und rahmenlose Verglasung geht der Wohnraum nahtlos auf die Panoramaterrasse über. Die Wohnung bietet einen spektakulären 360 Grad-Blick.

Das gesamte Projekt, weist eine anspruchsvolle und moderne Architektur auf, die auf höchste Funktionalität und Ästhetik ausgerichtet ist.

Im Untergeschoss befinden sich Keller und Garagen.

Die Lage bietet späte Sonneuntergänge und besticht durch die unmittelbare Nähe zur Altstadt sowie zu Geschäften, Bars, Restaurants, die Acquarena, die Vertikale und andere Freizeit- und Sportanlagen. Schulen und Kindergärten liegen in unmittelbarer Nähe.