Repräsentatives Büro im Herzen der Bozner Altstadt
Bozen
920.000 €
Preis
255.9 m2
Handelsfläche
Grundinformationen
  • Zustand der Immobilie
    Gebraucht
  • Stockwerk
    1. OG
  • Aufzug
    Ja
Zusatzinformationen
  • Keller
    Ja
  • Übergabezeitpunkt
    Ab sofort

Zum Verkauf steht ein großzügiges Büro in erstklassiger Lage im Herzen der Bozner Altstadt, in der begehrten Raffaello-Sernesi-Straße. Die zentrale und repräsentative Lage bietet eine hervorragende Infrastruktur mit unmittelbarer Nähe zu Geschäften, Restaurants, Banken sowie öffentlichen Verkehrsmitteln und macht die Immobilie besonders attraktiv für Unternehmen und Investoren.

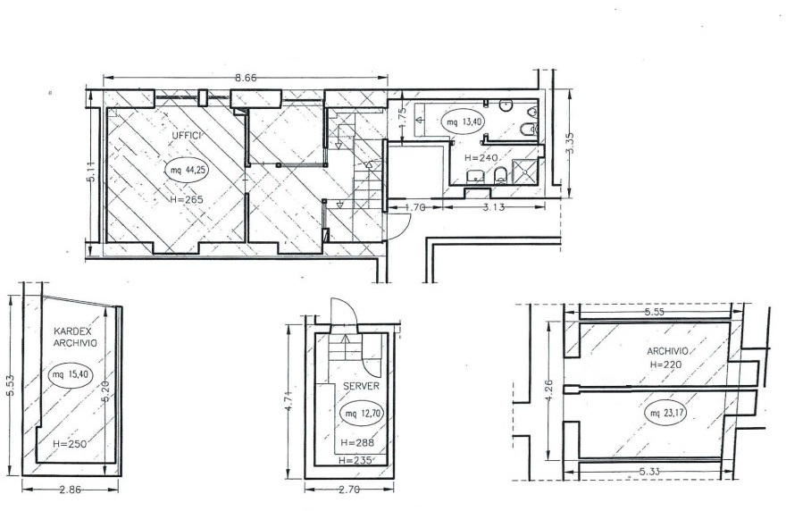
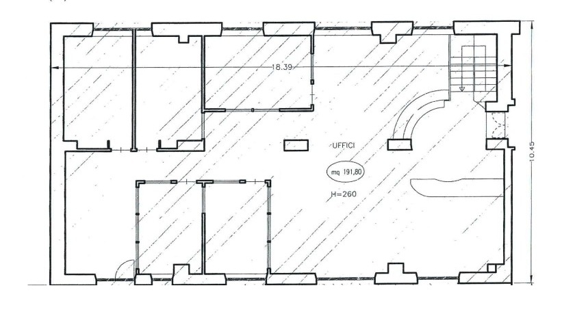
Das Büro verfügt über eine Gesamtfläche von ca. 255 m² und erstreckt sich über zwei Ebenen: Hochparterre und Halbuntergeschoss.

Im Hochparterre befinden sich 7 Büroräume, die eine flexible Nutzung ermöglichen und sich ideal für verschiedene Arbeitsbereiche, Besprechungsräume oder Einzelbüros eignen.

Das Halbuntergeschoss bietet zusätzliche funktionale Flächen und besteht aus einem weiteren Büro, einem Archiv, einem Serverraum sowie zwei Badezimmern. Diese Ebene eignet sich perfekt für administrative Tätigkeiten, Technikräume oder zusätzliche Arbeitsplätze.

Zur Immobilie gehört außerdem 1 Kellerraum, der zusätzlichen Stauraum bietet.

Die Einheit ist derzeit vermietet bis Juni 2026 und erzielt eine Jahresmiete von 39.600 €. Damit stellt diese Immobilie eine attraktive Kapitalanlage mit stabilen Mieteinnahmen dar und bietet gleichzeitig die Möglichkeit einer späteren Eigennutzung in einer der gefragtesten Lagen von Bozen.