Neuwertige Haushälfte mit Privatgarten
Eppan
1.190.000 €
Preis
246 m2
Handelsfläche
4
Zimmer
Grundinformationen
  • Konventionierte Immobilie
    Nein
  • Energieeffizienzklasse
    D
  • Zustand der Immobilie
    Neuwertig
  • Anzahl der Zimmer
    4
  • Garage
    Ja
Zusatzinformationen
  • Bäder
    3
  • Garten
    Ja
  • Keller
    Ja
  • Terrasse
    Ja
  • Balkon
    Ja
  • Dachboden
    Ja
  • Heizung
    Zentral
  • Übergabezeitpunkt
    Zu vereinbaren
  • Baujahr
    2001

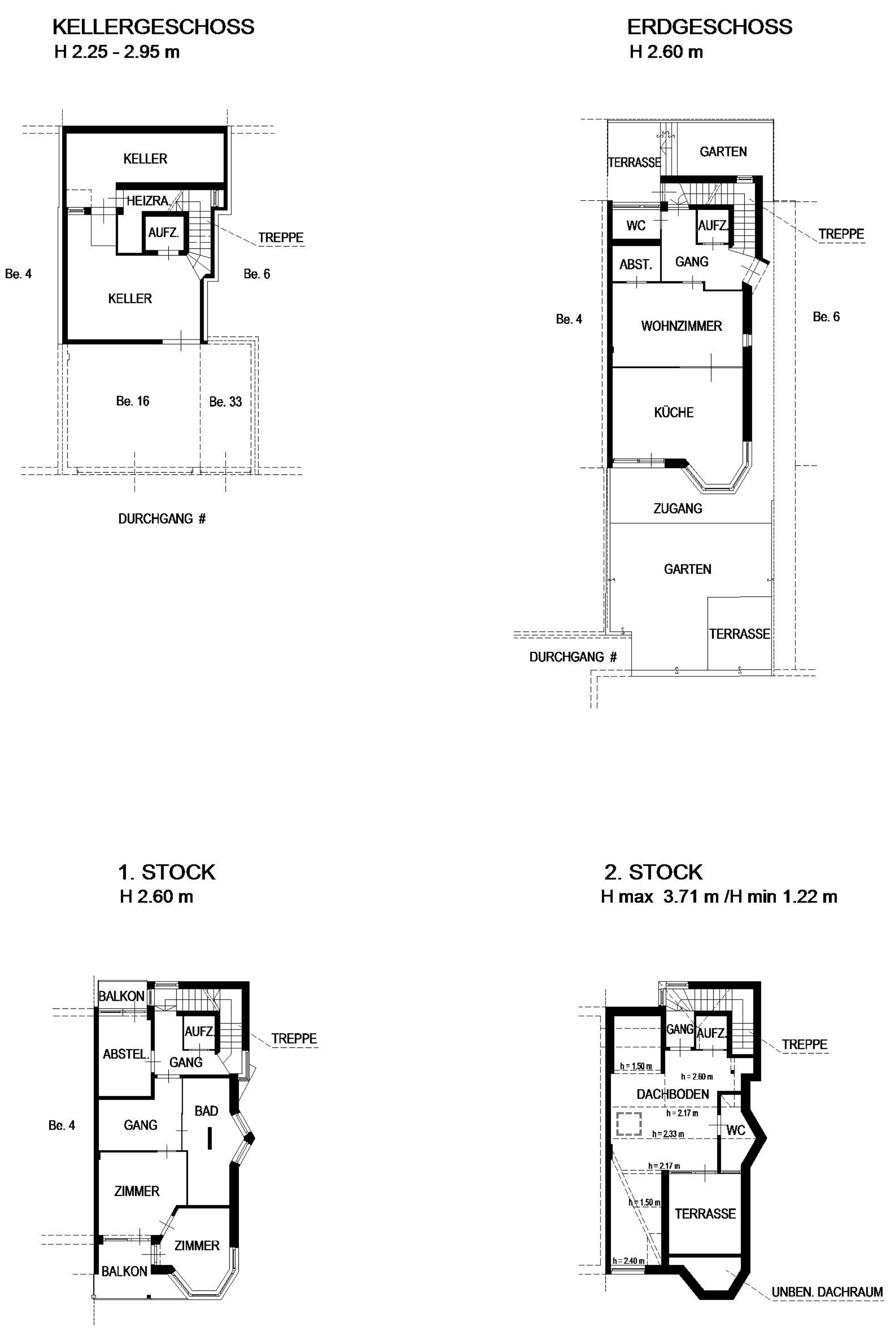
Diese stilvoll modernisierte Haushälfte überzeugt durch eine gelungene Kombination aus moderner Architektur, hochwertiger Ausstattung und durchdachter Raumgestaltung. Auf vier Ebenen entfaltet sich ein exklusives Wohnkonzept, das großzügige Räume, viel Tageslicht und höchsten Wohnkomfort vereint.

Der Hauptwohnbereich im Erdgeschoss bildet das Herzstück des Hauses. Ein großzügig gestalteter Wohn- und Essbereich mit offenem Raumgefühl schafft eine einladende Atmosphäre für Familie und Gäste. Die hochwertige Designküche mit erstklassigen Einbaugeräten fügt sich harmonisch in das Raumkonzept ein. Ein eleganter Kamin sorgt zusätzlich für eine warme, wohnliche Stimmung. Von der Küche aus gelangt man direkt in den liebevoll gestalteten Garten – ein geschützter Rückzugsort für entspannte Stunden im Freien.

Im ersten Obergeschoss befindet sich der private Schlafbereich. Das großzügige Hauptschlafzimmer verfügt über eine separate Ankleide sowie ein stilvolles Bad en suite mit freistehender Badewanne, großzügiger Dusche und exklusiver Ausstattung. Ergänzt wird diese Ebene durch einen weiteren vielseitig nutzbaren Raum, der sich ideal als Büro, Fitnessraum oder Atelier eignet. Ein praktischer Hauswirtschaftsraum mit maßgefertigten Einbauten sorgt für zusätzliche Funktionalität.

Das Dachgeschoss beeindruckt mit einem lichtdurchfluteten Raum sowie Zugang zu einer sonnigen, geschützten Terrasse mit viel Privatsphäre. Ein weiteres modernes Badezimmer macht diese Etage zu einem idealen Gäste- oder Arbeitsbereich.

Komplettiert wird die Immobilie durch einen großzügigen Kellerbereich sowie drei Garagenstellplätze, die sich bequem über den im Haus installierten Aufzug erreichen lassen. Die hochwertige Möblierung ist bereits im Kaufpreis enthalten und ermöglicht einen sofortigen Einzug.