Neue, moderne Würstelbude in Toplage – gegen Ablöse zu vermieten
Bozen
800 €
Preis
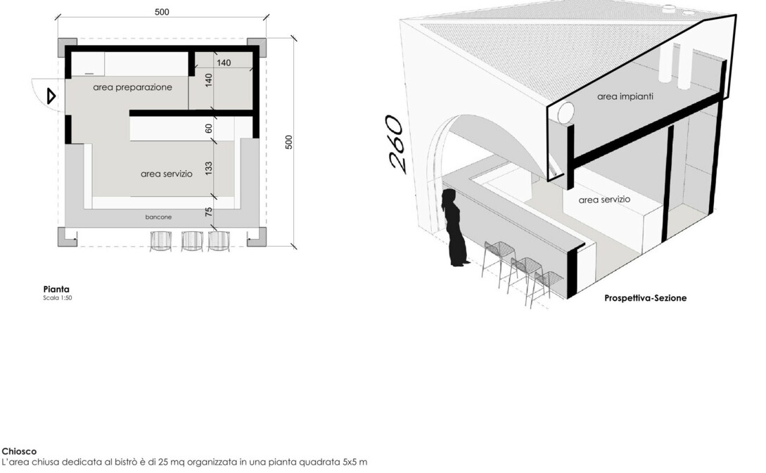
25 m2
Handelsfläche
Grundinformationen
  • Zustand der Immobilie
    Neu
  • Stockwerk
    EG

In bester und stark frequentierter Lage von Bozen, zwischen Bahnhof und Waltherplatz, wird ein moderner Würstelstand gegen Ablöse zur Miete angeboten.

Der Stand befindet sich in einer sehr gut sichtbaren und stark frequentierten Lage mit hoher Fußgängerfrequenz und eignet sich ideal für den Verkauf von Würsteln und klassischen Imbissprodukten.

Wichtiger Hinweis:

Es handelt sich um einen genehmigten Würstelstand, daher ist die Nutzung ausschließlich für den Betrieb einer Würstelbude bzw. für den Verkauf von Würsteln vorgesehen.

Der Imbissstand überzeugt durch:

  • Top-Standort mit hoher Fußgängerfrequenz

  • Neuwertige und moderne Ausstattung

  • Sehr gute Sichtbarkeit und Erreichbarkeit

Für die Übernahme der bestehenden Ausstattung und Einrichtung wird eine einmalige Ablöse verlangt.

Weitere Informationen und Details erhalten Sie gerne auf Anfrage.