Exklusive 3-Raum-Neubauwohnung mit zwei Terrassen in ruhiger Lage
Völs am Schlern
595.000 €
Preis
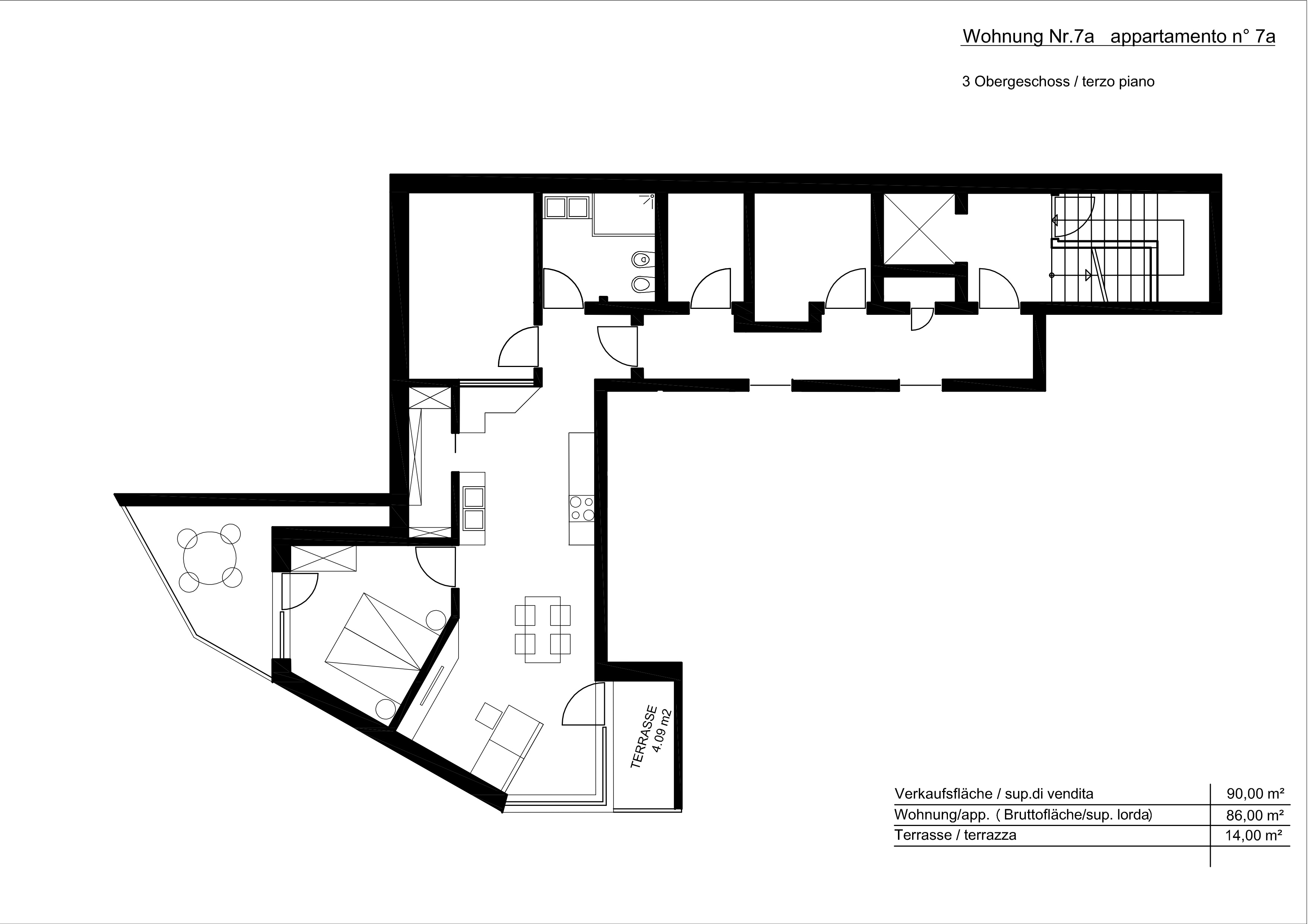
90 m2
Handelsfläche
3
Zimmer
Grundinformationen
  • Konventionierte Immobilie
    Nein
  • Energieeffizienzklasse
    A
  • Zustand der Immobilie
    Neu
  • Anzahl der Zimmer
    3
  • Stockwerk
    3. OG
  • Aufzug
    Ja
Zusatzinformationen
  • Bäder
    1
  • Keller
    Ja
  • Terrasse
    Ja
  • Heizung
    Zentral
  • Übergabezeitpunkt
    September 2025
  • Baujahr
    2024

In Völs am Schlern, nur einen Steinwurf vom majestätischen Schlern-Massiv entfernt, entsteht mit dem Nature Home Dolomites ein exklusives Neubauprojekt, das Architektur, Natur und Nachhaltigkeit in Einklang bringt. Die moderne Bauweise fügt sich sanft in den Hang ein und garantiert Privatsphäre, spektakuläre Ausblicke und eine harmonische Verbindung zur umliegenden Landschaft.

Zum Verkauf steht eine exklusive 3-Raum-Wohnung mit zwei Terrassen in ruhiger Lage. Interne Einteilung: Eingang, Wohnraum mit Küche, Schlafzimmer, Abstellraum, Hobbyraum, Badezimmer und Terrasse. 

Zur Wohnung gehört 1 Keller. 

Mit Energieeffizienzklasse A steht die Wohnanlage für einen umweltbewussten Lebensstil. Insgesamt umfasst das Gebäude nur 16 Wohneinheiten, die eine zurückhaltende und private Struktur garantieren.

Die architektonische Gestaltung überzeugt durch eine elegante, niedrige Bauweise, die von der Zufahrt aus kaum sichtbar ist und so Exklusivität mit Zurückhaltung verbindet. Zwei Gebäudeteile sind perfekt ins Terrain integriert und erlauben natürliche Belichtung sowie eindrucksvolle Panoramablicke.

Nachhaltige Technik wie eine Photovoltaikanlage und eine zentrale Wärmepumpe sorgen ganzjährig für optimalen Energiekomfort. Jede Einheit wurde mit dem Ziel maximaler Privatsphäre und Autonomie konzipiert – fast wie ein eigenes Haus mitten in der Natur.

Das Nature Home Dolomites setzt neue Maßstäbe für exklusives Wohnen im UNESCO-Weltnaturerbe Dolomiten. Hier entsteht ein Rückzugsort für anspruchsvolle Käufer, die Nachhaltigkeit, zeitgemäßes Design und höchste Wohnqualität schätzen.